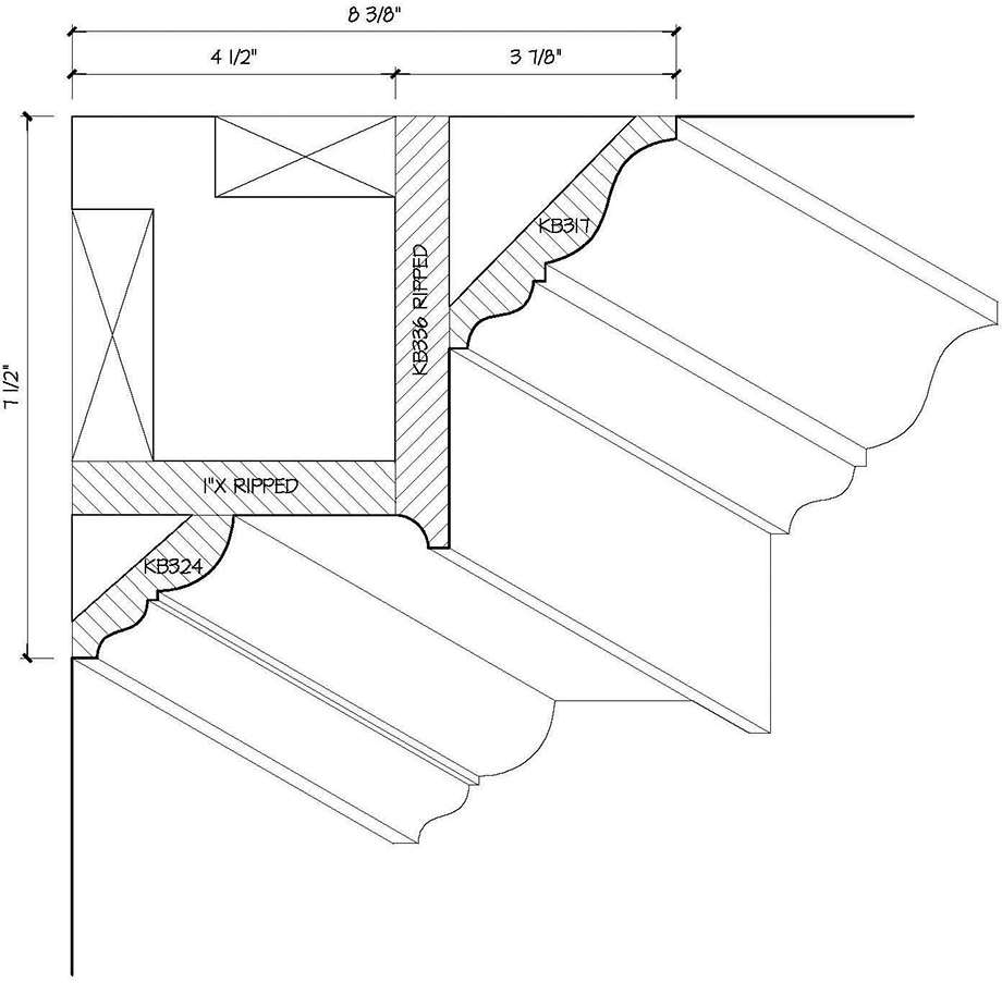
Georgian Boxed Crown Cornice
Find individual profiles used in this collection: KB336 Cornice Fascia, KB324 Bed Mould, KB317 Crown
Established in 1912, Kuiken Brothers has grown to be the leading supplier of quality residential and commercial building materials with a focus on serving the needs of professional contractors and homeowners in the region. With more than 325 building material specialists in the company, we have a total of nine locations to service the greater Tri-State area and can fulfill out-of-state orders upon request.
Residential & Commercial Building Materials
If you want to see everything that is happening at Kuiken Brothers (events, featured products, internal happenings, etc), this is the place to take a look.
When we find a really cool product or unique installation method for a residential application, this is where we will post the details.
Commercial general contractors, subcontractors, builders and developers will find this section useful for solutions for mixed-use, multi-family, office buildings, hospitals and schools.
Want to learn a few time saving installation tips and techniques directly from manufacturer representatives? We invite you to attend our LIVE Demo Days or AIA Seminars. We understand that our industry learns by seeing, touching and feeling the products, not just by reading about them online and in magazines. These events are free to all of our customers, so come join us today!
Have a question? Need to request a quote or schedule an appointment to visit one of our showrooms? Save time by starting your contact request online and we'll connect you to a Kuiken Brothers representative.
9 LOCATIONS IN NEW JERSEY & NEW YORK IN NJ & NY | SUBMIT ORDER/ QUOTE
Find individual profiles used in this collection: KB336 Cornice Fascia, KB324 Bed Mould, KB317 Crown
View the complete collection of Kuiken Brothers’ Classical - Georgian Style Moulding